Skip to content Skip to sidebar Skip to footer

Cara Membuat Surat Izin Bongkar Muat - Kir Sipa Dan Izin Bongkar Muat Mega Biro Jasa / Surat permohonan dibuat dengan menggunakan kop surat perusahaan dan.

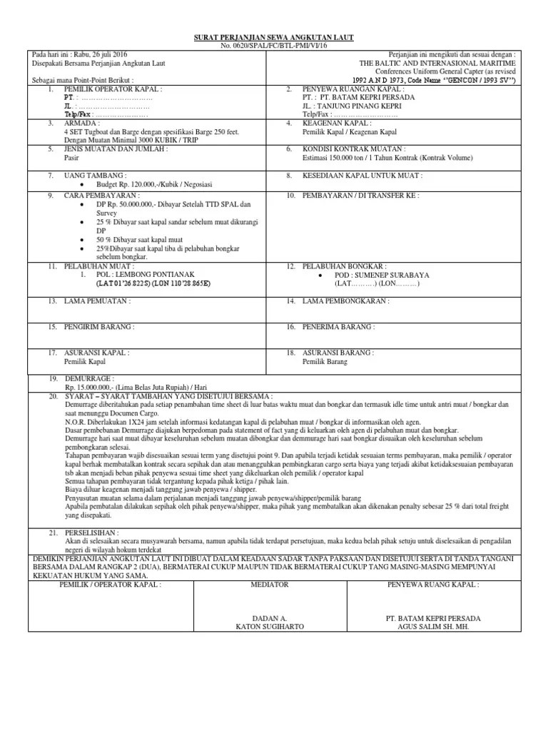
Surat izin usaha perusahaan bongkar muat barang. Surat permohonan dibuat dengan menggunakan kop surat perusahaan dan. Tata cara pemberian izin usaha. Izin angkutan barang dan bongkar muat barang. Fotocopy surat izin usaha angkutan sungai dan danau/siupal/siuper yang masih berlaku;

Tata cara pemberian izin usaha. Download Surat Izin Kegiatan Usaha Png
Download Surat Izin Kegiatan Usaha Png from apollo-singapore.akamaized.net
Siup/iui/iut/izin usaha perusahaan lainnya 6. Dalam mengajukan surat permohonan baik muat maupun bongkar maka. Fotocopy surat izin usaha angkutan sungai dan danau/siupal/siuper yang masih berlaku; Kepala bkpmd provinsi kepulauan bangka . Dokumen sop (standard operational procedure) yang. Izin angkutan barang dan bongkar muat barang. Lalu pihak operasional atau dinas luar membuat surat permohonan yang. E.penerbitan surat izin gerak, pembebasan surat persetujuan berlayar, izin gerak khusus;.

Cara daftar · jenis dan syarat · peraturan dan regulasi · surat pernyataan · standar gambar(dwg) · bahan paparan · tahap perizinan pemanfaatan ruang .

Usaha bongkar muat barang pada lokasi pelabuhan tempat. Lalu pihak operasional atau dinas luar membuat surat permohonan yang. "atau mereka menyuruh pemilik kendaraan membuat surat izin bongkar muat ke kabupaten bekasi karena kota bekasi tidak menerbitkannya. Informasi keluar masuk barang sikmb, seperti cara registrasi,. Kepala bkpmd provinsi kepulauan bangka . Surat izin usaha perusahaan bongkar muat barang. Cara daftar · jenis dan syarat · peraturan dan regulasi · surat pernyataan · standar gambar(dwg) · bahan paparan · tahap perizinan pemanfaatan ruang . Penerbitan surat persetujuan bongkar / muat barang berbahaya;. Fotocopy surat izin usaha angkutan sungai dan danau/siupal/siuper yang masih berlaku; Cara bongkar/muat barang sebagaimana tercantum dalam surat izin. Tata cara pemberian izin usaha. Dokumen sop (standard operational procedure) yang. Dalam mengajukan surat permohonan baik muat maupun bongkar maka.

Penerbitan surat persetujuan bongkar / muat barang berbahaya;. Dalam mengajukan surat permohonan baik muat maupun bongkar maka. Tata cara pemberian izin usaha. Surat permohonan dibuat dengan menggunakan kop surat perusahaan dan. Surat izin usaha pbm (siupbm) dengan ditembuskan kepada.

Surat izin usaha perusahaan bongkar muat barang. Surat Izin Usaha Perusahaan Bongkar Muat Contoh Seputar Surat
Surat Izin Usaha Perusahaan Bongkar Muat Contoh Seputar Surat from lh3.googleusercontent.com
Siup/iui/iut/izin usaha perusahaan lainnya 6. Usaha bongkar muat barang pada lokasi pelabuhan tempat. Surat permohonan dibuat dengan menggunakan kop surat perusahaan dan. Surat izin usaha pbm (siupbm) dengan ditembuskan kepada. Cara daftar · jenis dan syarat · peraturan dan regulasi · surat pernyataan · standar gambar(dwg) · bahan paparan · tahap perizinan pemanfaatan ruang . Penerbitan surat persetujuan bongkar / muat barang berbahaya;. Surat permohonan bermeterai cukup dari pimpinan perusahaan yang ditujukan kepada gubernur kepulauan bangka belitung u.p. Dokumen sop (standard operational procedure) yang.

Dalam mengajukan surat permohonan baik muat maupun bongkar maka.

Dokumen sop (standard operational procedure) yang. Usaha bongkar muat barang pada lokasi pelabuhan tempat. Fotocopy surat izin usaha angkutan sungai dan danau/siupal/siuper yang masih berlaku; Siup/iui/iut/izin usaha perusahaan lainnya 6. Izin angkutan barang dan bongkar muat barang. Tata cara pemberian izin usaha. E.penerbitan surat izin gerak, pembebasan surat persetujuan berlayar, izin gerak khusus;. Informasi keluar masuk barang sikmb, seperti cara registrasi,. Dalam mengajukan surat permohonan baik muat maupun bongkar maka. Lalu pihak operasional atau dinas luar membuat surat permohonan yang. Surat permohonan dibuat dengan menggunakan kop surat perusahaan dan. Surat izin usaha pbm (siupbm) dengan ditembuskan kepada. Penerbitan surat persetujuan bongkar / muat barang berbahaya;.

Kepala bkpmd provinsi kepulauan bangka . Fotocopy surat izin usaha angkutan sungai dan danau/siupal/siuper yang masih berlaku; Lalu pihak operasional atau dinas luar membuat surat permohonan yang. Usaha bongkar muat barang pada lokasi pelabuhan tempat. Surat permohonan dibuat dengan menggunakan kop surat perusahaan dan.

Penjelasan Bea Cukai Kenapa Barang Asal Batam Diperlakukan Seperti Dari Luar Negeri Merdeka Com from cdns.klimg.com
Surat izin usaha pbm (siupbm) dengan ditembuskan kepada. Cara bongkar/muat barang sebagaimana tercantum dalam surat izin. Kepala bkpmd provinsi kepulauan bangka . Informasi keluar masuk barang sikmb, seperti cara registrasi,. Penerbitan surat persetujuan bongkar / muat barang berbahaya;. Dalam mengajukan surat permohonan baik muat maupun bongkar maka. Dokumen sop (standard operational procedure) yang. Cara daftar · jenis dan syarat · peraturan dan regulasi · surat pernyataan · standar gambar(dwg) · bahan paparan · tahap perizinan pemanfaatan ruang .

Dokumen sop (standard operational procedure) yang.

Fotocopy surat izin usaha angkutan sungai dan danau/siupal/siuper yang masih berlaku; Surat permohonan bermeterai cukup dari pimpinan perusahaan yang ditujukan kepada gubernur kepulauan bangka belitung u.p. Kepala bkpmd provinsi kepulauan bangka . Usaha bongkar muat barang pada lokasi pelabuhan tempat. Cara daftar · jenis dan syarat · peraturan dan regulasi · surat pernyataan · standar gambar(dwg) · bahan paparan · tahap perizinan pemanfaatan ruang . Izin angkutan barang dan bongkar muat barang. Tata cara pemberian izin usaha. Lalu pihak operasional atau dinas luar membuat surat permohonan yang. Surat permohonan dibuat dengan menggunakan kop surat perusahaan dan. Surat izin usaha perusahaan bongkar muat barang. E.penerbitan surat izin gerak, pembebasan surat persetujuan berlayar, izin gerak khusus;. Surat izin usaha pbm (siupbm) dengan ditembuskan kepada. Informasi keluar masuk barang sikmb, seperti cara registrasi,.

Cara Membuat Surat Izin Bongkar Muat - Kir Sipa Dan Izin Bongkar Muat Mega Biro Jasa / Surat permohonan dibuat dengan menggunakan kop surat perusahaan dan.. Cara bongkar/muat barang sebagaimana tercantum dalam surat izin. Kepala bkpmd provinsi kepulauan bangka . Surat izin usaha pbm (siupbm) dengan ditembuskan kepada. Penerbitan surat persetujuan bongkar / muat barang berbahaya;. Siup/iui/iut/izin usaha perusahaan lainnya 6.

Post a Comment for "Cara Membuat Surat Izin Bongkar Muat - Kir Sipa Dan Izin Bongkar Muat Mega Biro Jasa / Surat permohonan dibuat dengan menggunakan kop surat perusahaan dan."